• HOME
  • LEADERSHIP
    • About Leadership
    • Lasting Relationships
    • Global Service
    • Multidisciplinary
    • Principals
    • It: The Architecture of existence
    • About Expertise
    • Sustainable Design
    • LEED AP
    • Saving Clients' Money
    • Knowledge
    • Empowering
    • About Process
    • Looking
    • Listening
    • Learning
    • Leading
    • Lifting
  • NEWS
  • CONTACT
Project List
  • Urban
  • Public
  • Commercial
  • Educational
    • Robert L. Stevens School
    • Riviera School, CA
    • Environment
    • Flexible environment
    • Courtyards
    • Multipurose
    • Classroom
    • Play Area
    • Entry
    • Empowering Youth
    • Learning by Design
    • Seward School, Seward
    • Treasure Island Child Care
    • Lloyd Diedricksen School, Nevada
    • Chanzy, Pointe a Pitre
  • Healthcare
  • Residential
  • Construction Management
  • What People Say

Empowering Youth through Architecture

Flexible environment

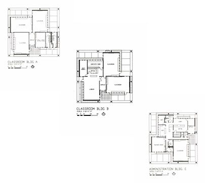
Classroom buildings A, B and C have the same long span structural system Open Space is subdivided to respond to functional need

 

 

info@hansenarchitects.com
©2025 Danadjieva Hansen Architects, Inc. All Rights Reserved.